Osada Świerkówka, Klembów
- Typ: Dom wolnostojący
- Powierzchnia: 135 m²
- Cena: 478 000 PLN
Opis
O OSADZIE SŁÓW KILKA…
Osada Świerkówka to okazałe osiedle 5 domów jednorodzinnych o pow. 131-145 m2, których architektura utrzymana została w stylu tradycyjnym.
Wszystkie podobne, choć każdy inny – razem idealnie wkomponowują się w rosnącą tu od dziesięcioleci zieleń.
Okolica jest bogata w piękne lasy gminy Klembów tworzące najstarszy i największy na terenie powiatu wołomińskiego Rezerwat Przyrody Dębina oraz torfowiskowy Rezerwat Śliże.
Osada Świerkówka urzeka o każdej porze roku. Będzie spełnieniem marzeń dla osób zmęczonych miastem, choć nie chcących utracić z nim stałego kontaktu. Sąsiedztwo lasów, kwietnych łąk i kameralność zatopionych w zieleni budynków sprawia, że Osada Świerkówka stanie się azylem dla osób ceniących spokój i bliski kontakt z przyrodą.
LOKALIZACJA
Osada Świerkówka to kameralne osiedle domów jednorodzinnych usytuowane ok. 25 km od granic Warszawy przy ul. Jana Pawła II 3 w miejscowości Klembów, powiat wołomiński.
Osiedle położone jest w malowniczym otoczeniu wieloletnich drzew świerkowych. W centrum Klembowa oddalonym o ok. 3 minuty jazdy samochodem znajdują się sklepy, Szkoła Podstawowa, Gimnazjum, Przedszkole, Kościół, Poczta.
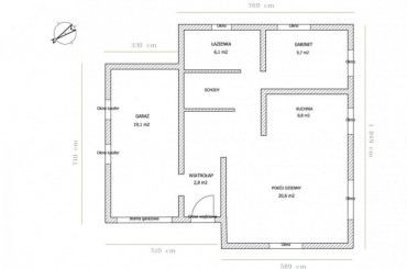
BUDYNEK
Dom jednorodzinny, parterowy z poddaszem użytkowym o pow. 128,3 m2, usytuowany na działce o pow. 507 m2.
W części parterowej znajduje się salon z wyjściem na przestronny taras, kuchnia, gabinet, łazienka i 1-stanowiskowy garaż.
Na poddaszu do dyspozycji mamy 3 pokoje, garderobę, łazienkę i mały stryszek.
Teren wokół budynku został starannie zaprojektowany. Okazałe świerki rosnące od strony frontowej nadają całości niepowtarzalny charakter. Uzupełnieniem będzie piękny, granitowy taras, który zapewni miłe chwile odpoczynku.
Teren wokół budynku zachwyca bogactwem zieleni. Znajdziemy tu wieloletnie świerki, jodły i drzewa ozdobne.
Kupujący nie płaci prowizji oraz jest zwolniony z podatku PCC w wysokości 2%
Szczegóły
| Powierzchnia | 135 m² |
|---|---|
| Powierzchnia działki | 536 m² |
| Cena | 478 000 PLN |
| Cena za m² | 3 541 PLN |
| Lokalizacja | Klembów |
| Ulica | Jana Pawła II |
| Ilość pokoi | 5 |
| Rok budowy | 2016 |
| Rodzaj rynku | Pierwotny |
| Stan prawny | własność |
| Umeblowane | Nie |
| Poddasze użytkowe | 1 |
| Liczba miejsc parkingowych naziemnych | 1 |
| Garaż | 1 |
| Ogród | 1 |
| Domofon | Tak |
| Osiedle strzeżone | Tak |
| Drzwi antywłamaniowe | Tak |
| Monitoring | Tak |
| Alarm | Tak |
| Dach | dachówka ceramiczna |
| Ogrzewanie | gazowe |
| Stan nieruchomości | do wykończenia |
| Gaz | Tak |
| Woda | Tak |
| Prąd | Tak |























